Дома под ключ в Шахты
Отзывы из Яндекс Карт
4.9
117 отзывов
Дополнительные услуги 88%
2 154 оценок
Комплектации 89%
1 535 оценок
Планировки 90%
2 484 оценок
Проекты 93%
2 231 оценок
С
Захар11.05.2026 г.
Дом 10х15 с цокольным этажом и двумя гаражами, элитный, для большой семьи. Строительство длилось 9 месяцев, я постоянно приезжал проверять. Бригада работала без выходных, вежливые, но несколько раз перекладывали рулонную гидроизоляцию на крыше — протечек не было, но перестраховались. Сейчас живем, довольны.
С
Лаврентий Беликов06.04.2026 г.
Дом 5х7,5 с эркером и санузлом, одноэтажный. Заказ оформлял через сайт, приехал замерщик, все быстро. В процессе поменял проект — добавил террасу, доплатил по факту. К финишу немного затянули с кровлей, неделю ждал.
С
Арсений Тихонов28.01.2025 г.
Спасибо за профессионализм и ответственность — несмотря на мои частые отъезды, строительство шло строго по плану, и теперь у меня есть прекрасный загородный дом для отдыха всей семьёй.
Отзывы из Google Карт
4.8
70 отзывов
Дополнительные услуги 88%
2 154 оценок
Комплектации 89%
1 535 оценок
Планировки 90%
2 484 оценок
Проекты 93%
2 231 оценок
С
Эльза Шувалова28.03.2026 г.
Баню топили первый раз под руководством прораба — он объяснял, как правильно протапливать новую печь, чтобы не пошли трещины. Не каждый будет так заморачиваться, обычно сдали ключи и забыли.
С
Римма Леонова01.02.2026 г.
Сначала хотела все контролировать, потом устала и решила довериться. И знаете, они сделали даже лучше, чем я ожидала в каких-то моментах. Есть профессиональный взгляд, который не заменишь.
С
Забава Козина05.01.2026 г.
После новоселья обнаружили, что плохо закрывается одно окно на втором этаже. Позвонили, через три дня приехал мастер, всё подрегулировал. Мелочь, а приятно, что не отфутболили.
С
Вася Прохоров04.08.2025 г.
С детства мечтал о деревянном доме, и вот моя мечта сбылась благодаря компании «Брус дома»! Строил дом из профилированного бруса. С самого начала понравился честный и открытый подход: сразу озвучили конечную стоимость, без скрытых доплат и сюрпризов. Весь процесс строительства курировал личный менеджер, который всегда был на связи и оперативно решал любые вопросы. Бригада строителей — настоящие профессионалы, видно, что любят своё дело. Дом собрали быстро, качественно, теперь наслаждаюсь живой атмосферой дерева и неповторимым ароматом. Спасибо за мой прекрасный дом!
Отзывы из 2гис
4.9
41 отзывов
Дополнительные услуги 88%
2 154 оценок
Комплектации 89%
1 535 оценок
Планировки 90%
2 484 оценок
Проекты 93%
2 231 оценок
С
Геннадий Ситников16.05.2025 г.
С момента обращения в компанию и до момента сдачи объекта прошло всего несколько месяцев, но за это время я успел получить ответы на все свои вопросы и стал обладателем прекрасной бани, которая радует меня и моих друзей каждые выходные.


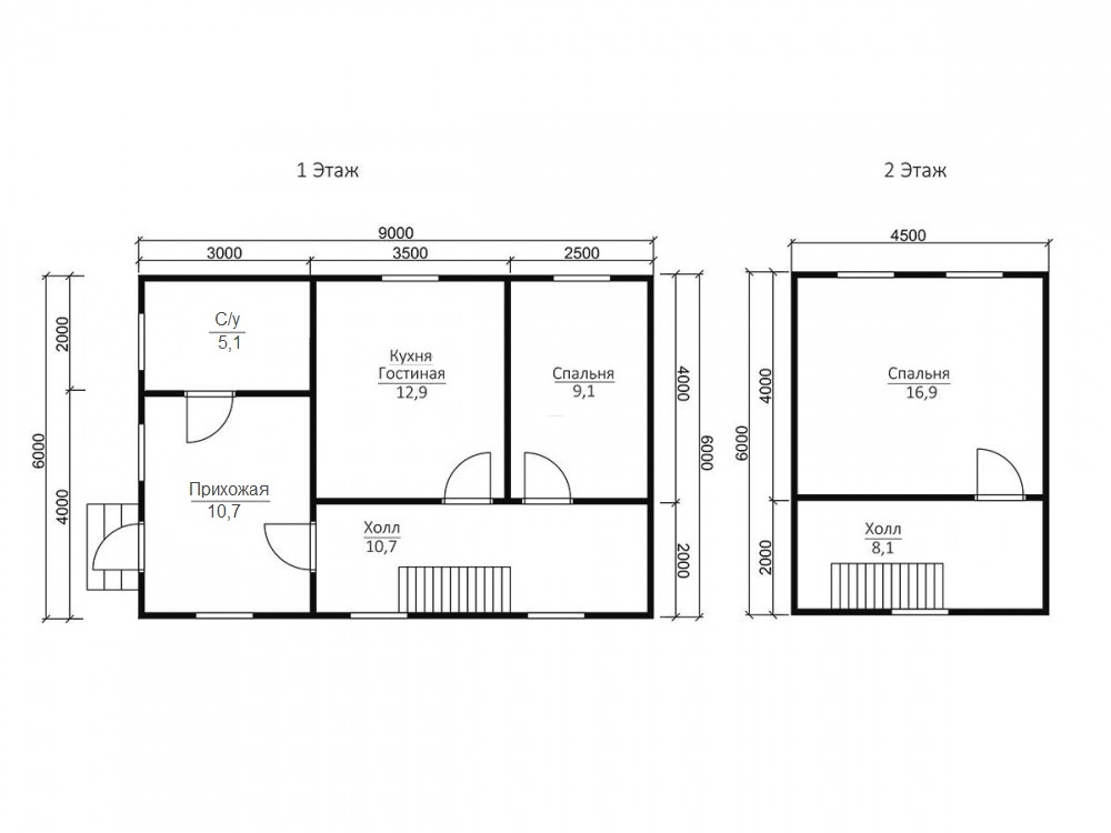
Проект №26 Дом с кухней-верандой 6х9

каркас из строганой доски
Создайте свой план для этого проекта
и отправьте его нам на расчет в один клик.
Каркасный дом (150 мм) 6х9 Толщина утепления 150 мм 2365500 Заказать
Каркасный дом (200 мм) 6х9 Толщина утепления 200 мм 2643100 Заказать

Доставка включена в стоимость дома!

Для того, чтобы подстроить уже готовый проект и получить свою персональную планировку, воспользуйтесь планировщиком.

При помощи планировщика вы можете создать подходящие схемы, чертежи, эскизы, планы уникального дома с эркером, мансардой, с одной, двумя или тремя спальнями. Вы сможете получить идеальный проект, на 100% отвечающий вашим условиям.

При заказе дома можно выбрать вид крыши: четырехскатная, двускатная и вальмовая. Двухскатную крышу считают самой востребованной у малометражных построек.

Востребованные размеры сегодня: мини - до 50м2 (в основном, одноэтажные дома); компактные - от 70 до 100 кв. М (обычно 2х этажные); большие дома - от 150 квадратных метров и свыше.

Можем предложить дуплексы - каркасные дома с двумя входами на 2 семьи. Дома предполагаются для двух хозяев, они поделены на две части, для обоих половин - свой вход.


Наши работы

Перейти в галерею


Комплектация

Площадь застройки: 54 м2
Длина: 6 м
Ширина: 9 м
Общая площадь: 73 м2
Исполнение Под ключ (с отделкой)
Фундамент Свайно-винтовой или ж/б сваи (рассчитываются отдельно).
Гидроизоляция фундамента Рубероид в два слоя.
Основание (обвязка) Из обрезного бруса 150х150 мм. 150х200 мм. согласно выбранной толщине утепления. Торцевая доска строганая 45х145/45х195+/-5 мм. согласно выбранной толщине утепления. Обработка антисептиком.
Цокольное перекрытие Строганая доска камерной сушки 45х145/45х195+/-5 мм. с шагом 590 мм. Обработка антисептиком.
Пол черновой Обрезная доска камерной сушки 20х100 мм.
Влаго-ветрозащита чернового пола Мембрана Ондутис А100.
Внешние стены Стойки каркаса из строганой доски камерной сушки 45х145/45х195+/-5 мм. с шагом 590 мм. Верхняя двойная и нижняя обвязки из строганой доски камерной сушки 45х145/45х195+/-5 мм. Разгрузочный ригель из строганой доски 45х145+/-5 мм. Укосины из строганой доски 20х95 мм.
Перегородки Стойки каркаса из строганой доски камерной сушки 45х95+/-5 мм. с шагом 590 мм. Верхняя двойная и нижняя обвязки из строганой доски 45х95+/-5 мм. Разгрузочный ригель из строганой доски камерной сушки 45х145+/-5 мм. Укосины из строганой доски камерной сушки 20х95 мм.
Сборка каркаса На гвозди.
Высота от пола до потолка Дом одноэтажный: 2,5 м. Дом с мансардой: 1-ый этаж- 2,5 м.
2-ой этаж (мансарда)- 2,3 м.
Дом в полтора и два этажа:
1-ый этаж 2,5 м.
2-ой этаж 2,4 м. в полутораэтажном доме
2,5 м. в двухэтажном доме.
Внешняя отделка стен Имитация бруса камерной сушки, сорт АВ, толщиной 17 мм. Монтаж через строганый брусок камерной сушки 45х45+/-5 мм. (вентилируемый фасад). Влаго-ветрозащитная мембрана- Ондутис А100.
Внутренняя отделка стен, перегородок Евровагонка камерной сушки, сорт АВ, толщиной 12,5 мм. по строганой рейке 20х40+/-5 мм. либо ГКЛ 12,5 мм.
Отделка потолка Евровагонка камерной сушки, сорт АВ толщиной, 12,5 мм. по строганой рейке 20х40+/-5 мм. либо ГКЛ 12,5 мм.
Пол чистовой Шпунтованная доска камерной сушки толщиной 35-36 мм. сорт АВ. по строганой рейке 20х40+/-5 мм. либо шпунтованная ДСП 16 мм. по разряженной обрешётке из строганой доски камерной сушки 20х95+/-5 мм.
Утепление (пол, потолок) Минеральная вата Knauf 150/200 мм. согласно выбранной толщине утепления.
Утепление стен Плитный утеплитель Rockwool, толщиной 150/200 мм. согласно выбранной толщине утепления.
Звукоизоляция перегородок Плитный утеплитель Rockwool, толщиной 100 мм.
Пароизоляция (стены, перегородки, пол, потолок) Плёнка Ондутис R70. Дополнительная герметизация нахлёстов/примыканий пароизоляционной плёнки клейкой лентой Delta.
Окна Двухкамерные стеклопакеты ПВХ белого цвета, профиль 60 мм. В комплекте: отливы, подоконники, москитные сетки.
Двери Входная- металлическая, утеплённая (Россия). Межкомнатные- филёнчатые.
Наличники на окна и двери Наличник деревянный, строганый, камерной сушки 70-90 мм. с двух сторон.
Лестница (при наличии второго этажа) Деревянная, одно или двухмаршевая. Перила- заводские резные, балясины- заводские точеные, устанавливаются стартовые точёные столбы. Ступени 40х200 мм. Тетива лестницы- 90х140 мм.
Крыша Двускатная, ломаная или вальмовая в соответствии с проектом.
Стропильная система Выполнена из строганой доски камерной сушки 45х145/45х195+/-5 мм. Шаг установки стропил 590 мм.
Обрешётка Выполняется из строганой доски камерной сушки толщиной 20х95+/-5 мм. Шаг крепления обрешетки 350 мм. Контробрешётка выполняется из строганого бруска камерной сушки 45х45+/-5 мм. Крепится по стропилам (вентиляционный зазор).
Подкровельная мембрана Ондутис А100
Кровельное покрытие (на выбор) Металлочерепица 0,45 мм. Цвет на выбор.
Фронтоны (при наличии) Каркас из строганой доски камерной сушки 45х145/45х195+/-5 мм. Обшиваются имитацией бруса камерной сушки, сорт АВ, толщиной 17 мм. Монтаж через строганый брусок камерной сушки 45х45+/-5 мм. (вентилируемый фасад). Влаго-ветрозащитная мембрана- Ондутис А100. Монтаж вентиляционных решёток.
Свесы крыши Ширина 400 мм. Подшиваются вагонкой камерной сушки, сорт АВ.
Терраса/балкон (при наличии) Устанавливаются опорные столбы из строганного бруса камерной сушки 140х140 мм.
Отделка потолка террасы/балкона Евровагонка камерной сушки толщиной 12,5 мм. сорт АВ.
Пол террасы/балкона Шпунтованная доска камерной сушки толщиной 35-36 мм. сорт АВ.
Ограждение террасы/балкона Перила- строганая доска. Балясины- точеные, фигурные. Либо ограждение в скандинавском стиле. Устанавливаются ступени у входа.
Допуск на геометрические параметры Составляет +/- 50 мм по длине с каждой стороны.
Допускается стыковка имитации бруса, вагонки и половой доски По всему периметру стен дома (если ширина и длина дома более 6,0 метров). Вагонки и доски пола в каждой отдельной комнате.
Допуски по имитации бруса, вагонке, доске +/- 5 мм.
В стоимость включена Доставка комплекта материала в радиусе 500 км. от г. Пестова Новгородской области и сборка дома на вашем участке.
Гарантия 5 лет.
Бытовка строительная 2,0х3,0 м. каркасно-щитовая. Стоимость 23000 руб. Остаётся на участке Заказчика.
Туалет 1,0х1,0 м. каркасно-щитовой. Стоимость 12000 руб. Остаётся на участке Заказчика.
Генератор Стоимость аренды на весь срок строительства 15000 руб. ГСМ за счёт Заказчика.

Постройка каркасного дома осуществляется в нескольких видах: под усадку, когда дом отстаивается определенное время и полностью под ключ.

Зимой специалисты советуют строить дома в мороз, чтобы каркас не промок, в летний период - не под дождем.

Оптимальными для сада или дачи стали экономичные дома на винтовых сваях, на нашем сайте вы увидите одноэтажные и полуторатажные типы домов.

При условии, что дом будет строиться для проживания на протяжении всего года, готовы предложить надежные и теплые одноэтажные и двухэтажные дома на ленточных и плитных фундаментах.

Существует 2 вида утепления: 200 мм и 150 мм. Каркасные дома с толщиной стен двести миллиметров получаются теплее, но стоят дороже.

Дополнительные услуги


Каркасник , по плану 26 полутораэтажный с теплоизоляционной двускатной разновидностью крыши, запоминается экологической чистотой, благодаря использованию древесно-стружечных плит, ваты базальтовой и минеральной, а это обеспечивает замечательную защиту от морозов, замечательный микроклимат в доме. Габариты дома составляют 6х9 м., суммарная жилплощадь - 73 кв.м.. Наша компания в самые короткие сроки создаст для вас каркасный дом по персональному или типовому плану в Шахты в необходимое вам время года и на любом типе грунта.

Популярные проекты


Дома из бруса с балконом Дома из бруса 4х5 Каркасные дома
хит продаж
Тип:
Общая площадь: 2
1958760
от 1865500
хит продаж
Тип: с маленькой террасой
Общая площадь: 2
3854220
от 3670700
хит продаж
Тип: с большой террасой
Общая площадь: 2
4450200
от 4238300
Дома из бруса

Заказать или задать вопрос



Заказать или задать вопрос

Заказать звонок